3
2
1318
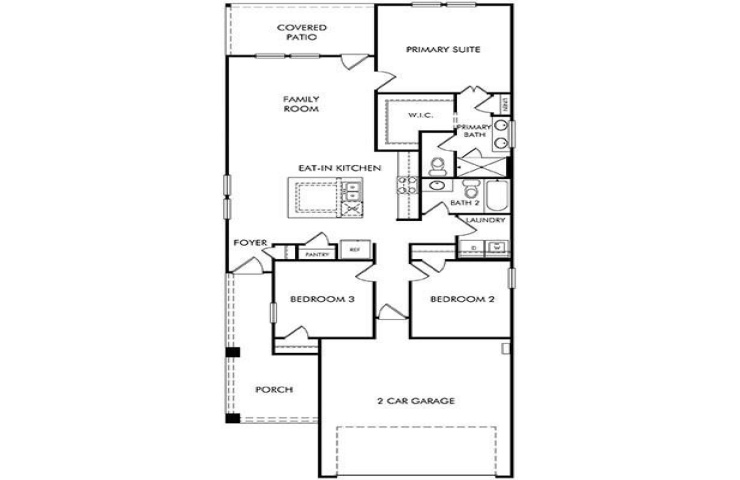
Property Description: BRAND NEW energy - efficient home Jan 2026! Enjoy family dinners around the kitchen island in the Sequoia's convenient eat-in kitchen. White cabinets with veined white quartz countertops, light tan EVP flooring with light taupe carpet.