4
2
1826
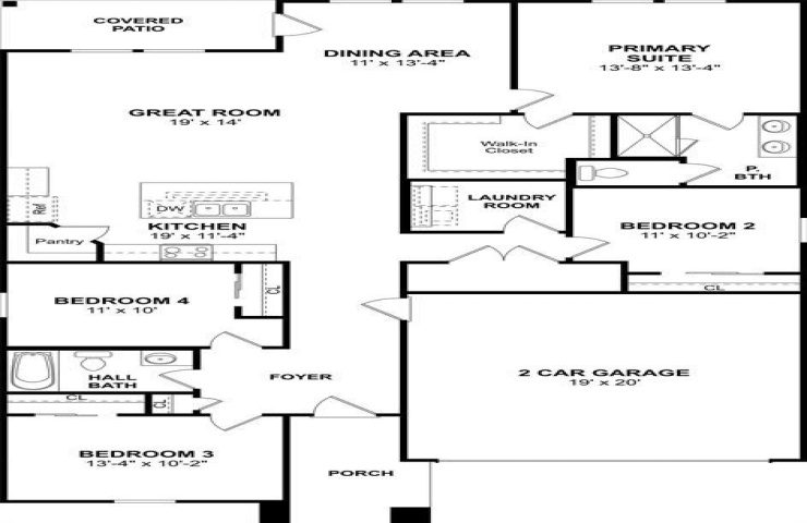
Property Description: From dawn to dusk and from outside-in, this home is a showstopper! Located in Van Alstyne, Texas and zoned to Van Alstyne ISD, this single-story Goldenrod II features a stunning brick exterior with stone accents, beautiful landscaping, and an open concept floorplan. Off the foyer are two convenient secondary bedrooms and a full bath in between. At the back of the home is the inviting kitchen, great room, and dining area. With stylish light stain shaker cabinets and quartz counters lit by black metal shade pendant lights, the kitchen is one to love for years to come. The primary suite and bath will have any homeowner feeling spoiled with the expansive walk-in closet and spacious shower.