5
3
2659
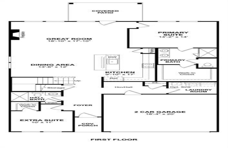
Property Description: This beautiful two-story home showcases laminate flooring in the entry, great room, kitchen and dining area. Open concept with a welcoming kitchen that showcases white shaker cabinets, quartz countertops, black metal shade pendant lighting, and stainless steel appliances. The kitchen island will surely become a focal point with the open concept floor plan into the dining area and great room! Primary bedroom is tucked away at the back of the home offering plenty of privacy.