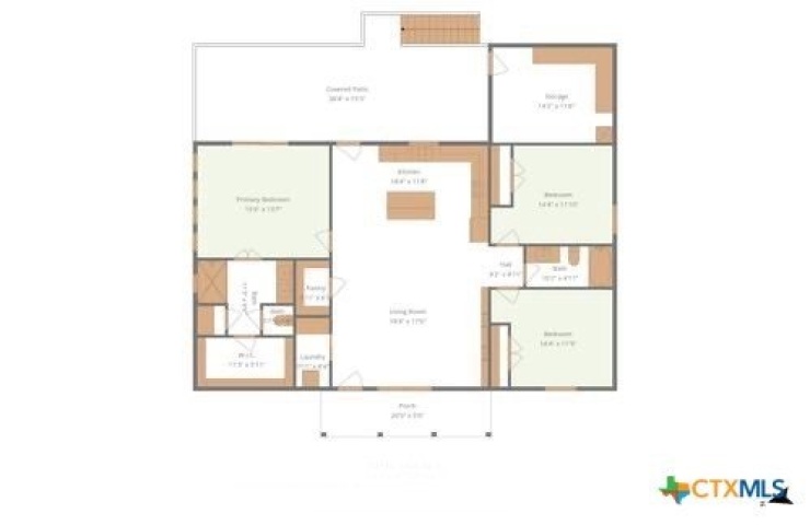
3
2
1450
Property Description: 3/2 New construction home! Nicely laid out plan offers split bedroom design in Startzville area. Canyon Lake Forest neighborhood offers community pool and clubhouse with location near several boat ramp options. Clean lines with neutral color accent this beautifully constructed home. Very nice large covered back porch overlooks a nice sized backyard. Includes new fridge, washer & dryer. Great opportunity with this one in an area that allows STR.