5
4
3379
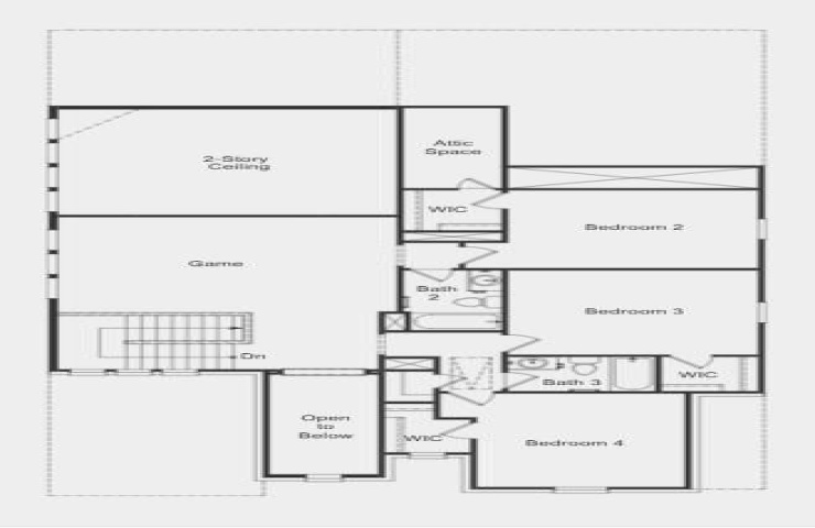
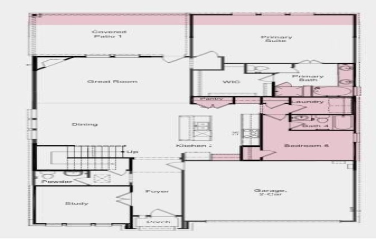
Property Description: What's Special: Oversized Lot - 5th Bedroom - Media Room. New Construction – October Completion! Built by Taylor Morrison, America's Most Trusted Homebuilder. Welcome to the Bordeaux at 1801 Penstemon Drive in Cross Creek Meadows! This home offers an open, light-filled spaces designed for easy living. Step inside from the covered front porch to a welcoming foyer and a private study with double doors. The kitchen, dining area, and great room flow together for effortless entertaining, while a main floor guest bedroom with a full bath sits just off the kitchen. The secluded primary suite features a spa-like bath with dual sinks, a soaking tub, separate shower, and walk-in closet. Upstairs, enjoy a game room and three secondary bedrooms with two shared baths. Relax on the oversized covered patio or explore Cross Creek Meadows 55s, a Celina community with planned amenities like a pool, cabana lounge, and scenic trails, plus easy access to Frisco and Plano. Additional highlights include: a main floor bedroom with a full bathroom, a soaking tub with a separate shower in the primary bathroom, an extended primary bedroom and covered back patio, a private study, and a gas drop at the covered back patio. Photos are for representative purposes only. MLS# 21038386