5
4
4131
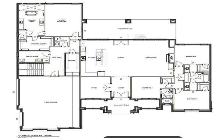
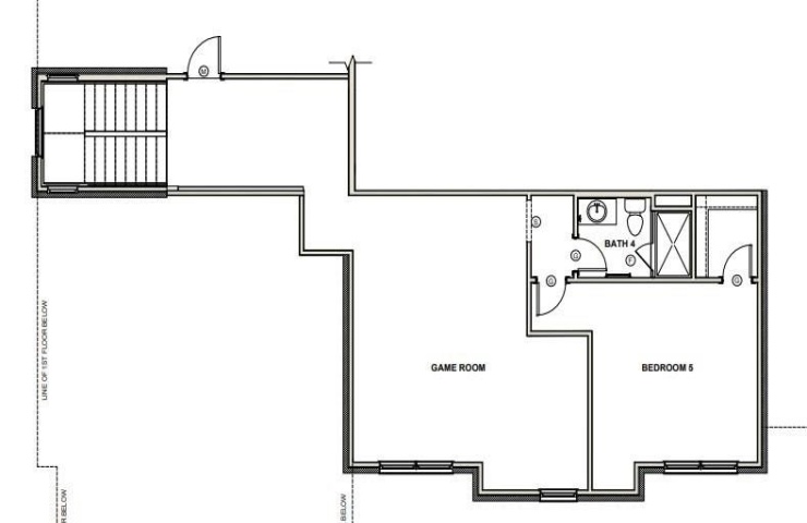
Property Description: Welcome to the site of your one of a kind, custom dream home! Joe Scolaro with Fairview Custom Homes is a 25 year veteran of luxury homebuilding. Clients will experience what a delight it is to work with Joe and his team of exemplary craftsmen. Meeting your wishes and expectations is the primary goal throughout the process. From meeting with his designer to one-on-one meetings every step of the way, Joe will provide this truly custom and unique home suited to your taste. This home features 5 bedrooms, 4.5 baths, office, game room, open living, kitchen and dining, large outdoor living area, and 3 car garage on 1 acre. NO HOA, NO MUD, NO PID!! Custom features of this exquisite home will be nail down custom finished hardwood floors, 100% custom built cabinetry, solid core doors, gorgeous iron entry door, fully encapsulated foam insulation. The foundation is engineered with piers with provides outstanding structural support. Anderson windows, Top of the line appliances, Too many custom features to list. Make an appointment today to meet with Joe and make this spectacular home yours!