Property Description: What's Special: North Facing Lot - Close to Greenbelt - Popular Plan!
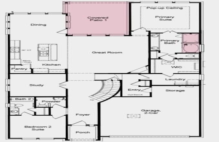
New Construction - Ready Now! Built by Taylor Morrison, America's Most Trusted Homebuilder. Welcome to the Citron at 1720 Buck Trail in The Ranch at Uptown Celina. This stunning new home is designed for comfort and style. Step through the welcoming foyer and past a secondary bedroom suite and private study into the spacious great room, where natural light fills the space. The gourmet kitchen shines with upgraded cabinets, sleek countertops, and a center island that flows into the dining area, perfect for gatherings. Beautiful flooring and plush carpet throughout add warmth and elegance. The main-level primary suite is tucked at the back of the home and features a spa-inspired bath with a slide-in tub and a large walk-in closet. Upstairs, enjoy a game room overlooking the great room, two secondary bedrooms, and two full baths for added convenience. Life at The Ranch at Uptown Celina offers everything you need for relaxation and recreation. Planned amenities include a sparkling pool, dog park, hiking and biking trails, and two air-conditioned community centers. Easy access to the Dallas North Tollway and Preston Road makes commuting simple, while students benefit from the highly rated Celina Independent School District, known for excellent schools and dedicated teachers. Here, every day feels like an opportunity to explore and enjoy. Additional Highlights Include: Slide-in tub at primary suite and an extended covered patio. Photos are for representative purposes only. MLS#21101109