4
3
2745
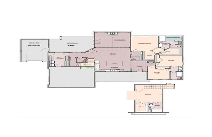
Property Description: Welcome to The Travis Plan by Caliber Homes, a modern interpretation of classic Texas living—crafted for those who value connection, comfort, and quiet sophistication. This 2,745 sq. ft. home features 4 bedrooms, 3.5 bathrooms, and a 3-car garage, designed with our signature Perfect Flow Floorplan philosophy for spaces that move as beautifully as they function. Inside, the open-concept great room anchors the home, seamlessly connecting to the chef-inspired kitchen and dining area—creating the perfect backdrop for day to day living and entertaining alike. Large windows flood the space with natural light, emphasizing Caliber’s craftsmanship and thoughtful design details. The primary suite offers a private retreat with a spa-like bath, Roman shower, and spacious walk-in closet. Secondary bedrooms are well-placed for both privacy and convenience, and the upstairs bedroom with full bath makes an ideal guest suite or guest hideaway. A dedicated study, mud and laundry room, and flexible workshop space off the garage provide true everyday functionality. Step outside to the covered patio, perfect for weekend gatherings or relaxing evenings. With full foam insulation and Caliber’s hallmark commitment to energy efficiency, this home blends enduring quality with elevated style.