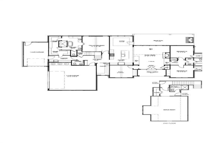
Property Description: Welcome to 7008 Bruce, a stunning Churchill plan in the highly sought-after Bear Creek Ranch community. Thoughtfully designed with balance, natural light, and function in mind, this 4-bedroom, 3.5-bath home offers 3308 square feet of beautifully crafted living space with a bonus second-floor retreat. From the moment you enter, expansive outdoor views and an inviting open layout set the stage for refined country living.
The great room features soaring ceilings, abundant windows, and seamless flow to the dining and kitchen spaces, creating an ideal environment for gathering and entertaining. The chef’s kitchen offers generous workspace, premium finishes, and sightlines overlooking the tree-lined surroundings.
The private primary suite provides peaceful separation with a spa-style bath and spacious closet. Secondary bedrooms are thoughtfully placed for comfort, including a dedicated guest suite. The upstairs bonus room and bath offer flexibility for a media room, office, or extended living space.
Full foam insulation enhances comfort and energy efficiency year-round. A spacious three-car garage, elegant exterior detailing, and wide-open views complete this exceptional home.
Situated in the picturesque Bear Creek Ranch community, this Churchill plan delivers luxury, craftsmanship, and tranquility just minutes from Aledo and Weatherford conveniences. LIMITED SERVICE LISTING: Buyer verifies dimensions & ISD info. Agent Related to Owner