4
2
2315
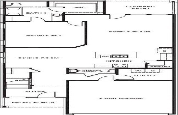
Property Description: Have a fabulous new construction home built by D.R. Horton, America’s Builder since 2002, in the highly sought-after community of Rock Creek Ranch located in Fort Worth and Crowley ISD! This beautifully designed two-story Renae floorplan (Elevation G) features 4 bedrooms, 2.5 bathrooms, a spacious game room, and a 2-car garage, with an estimated late winter completion. Enjoy an open-concept layout with a modern kitchen offering quartz countertops, stainless steel appliances, gas range, large island, 36” upper cabinets, and walk-in pantry. The kitchen flows into the dining area and large family room. Luxury vinyl plank flooring included in the entry, hallways, kitchen, dining, family room, utility room, and wet areas. The first-floor primary suite includes a generous walk-in closet and ensuite bath with oversized shower and quartz vanity tops. Upstairs features a spacious game room and three secondary bedrooms, each with walk-in closets. Energy-efficient construction and America’s Smart Home Technology included, plus a covered patio, privacy fencing, full sod, sprinkler system, and landscaping. Residents will be able to enjoy future amenities such as a community pool, park-playground, and walking trails, perfect for outdoor activities and relaxation. Situated just two miles from Benbrook Lake, this neighborhood offers easy access to nearby attractions, including shopping centers, Fort Worth landmarks, and education options.