4
3
2777
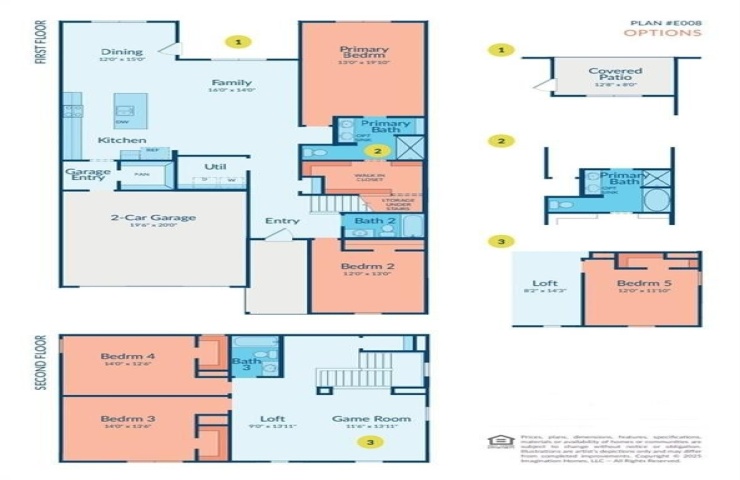
Property Description: MLS# 21128607 - Built by Imagination Homes - Dec 2025 completion! ~ Imagination Homes proudly introduces The Melody—a beautifully designed two-story home offering 4 bedrooms, 3 bathrooms, and 2,777 sq. ft. of thoughtfully crafted living space. This versatile floor plan features a convenient guest bedroom on the main level, with two oversized secondary bedrooms upstairs sharing their own full bathroom. The open-concept Family Room and Breakfast Nook are filled with natural light, creating a warm and inviting space for everyday living. The expansive 20' x 13' Primary Bedroom leads to a luxurious en-suite bath showcasing dual sinks, a relaxing soaking tub, a separate walk-in shower, and an impressive walk-in closet. At the heart of the home, the kitchen shines with elegant quartz countertops, a large single-bowl sink with an upgraded Moen faucet, and a complete suite of GE stainless steel appliances—including a gas range, microwave, and dishwasher. A huge walk-in pantry and a convenient Butler’s area between the garage and kitchen make grocery drop-offs effortless. Upstairs, a sprawling 20' x 28' Game Room offers endless possibilities—ideal for movie nights, study sessions, creative hobbies, or all of the above! Step outside to a covered back patio perfect for quiet mornings or evening entertaining. Located in a peaceful, well-connected community just minutes from Hwy 75, The Melody offers exceptional accessibility without sacrificing privacy or tranquility. Experience the superior design, flow, and craftsmanship that makes The Melody by Imagination Homes truly stand out. Schedule your tour today!