3
2
1419
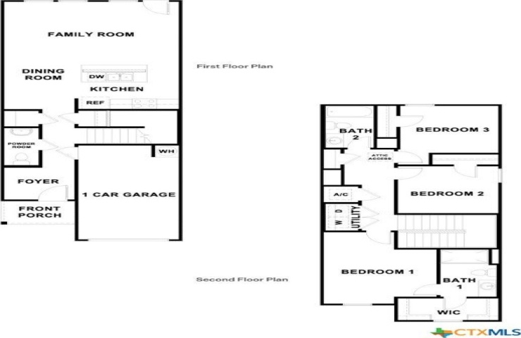
Property Description: MOVE IN READY! The Linnet is one of our new two-story floorplans featured in our Bollinger community in Maxwell, Texas is a 1,419 square foot home which includes 3 bedrooms, 2.5 bathrooms and a 1 car garage. Our homes in Bollinger feature our modern farmhouse exterior. As you step inside, you'll cross through the foyer, passing the powder room and staircase, and enter the dining room, kitchen, and family room. Built as an open concept, this space is sure to be the center of your home life and family activities. The kitchen features laminate countertops with 50/50 stainless steel drop-in bowl, 4" laminate backsplash, 36" upper cabinets and stainless-steel appliances, including a gas range. Off the kitchen is the pantry and hall closet. Upstairs you'll find the 3 bedrooms and 2 full bathrooms. At the front of the home is the primary bedroom with an attached private bathroom, making the start of your day a seamless step from sleep to your morning routine. Enjoy the walk-in shower, laminate countertop, and a generously sized walk-in closet. The secondary bedrooms include a closet with shelving and the hall bathroom includes a shower/tub combination. The utility room and hall closet finish out the upstairs space. The Linnet includes vinyl flooring throughout the common areas of the home, and carpet in the bedrooms. All our new homes feature Bermuda sod, an irrigation system in the front and back yard, and a 6' privacy fence around the back yard. This home features our America's Smart Home base package, which includes the Video Front Doorbell, Front Door Deadbolt Lock, Home Hub, Thermostat, and Deako(R) Smart Switches.