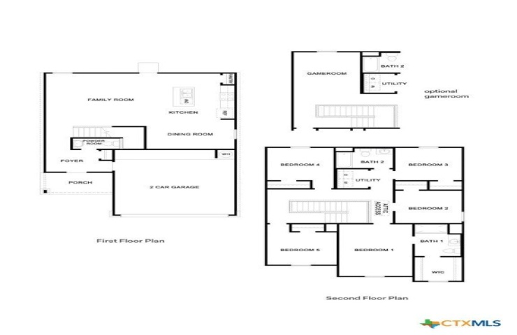
Property Description: JANUARY ESTIMATED COMPLETION. The Franklin is our largest floorplan available at Spring Valley in New Braunfels, Texas. This beautiful two-story home features 5 bedrooms (or an optional gameroom in lieu of a bedroom), 2.5 bathrooms and a 2-car garage across 1,892 square feet of comfortable living space. Our homes in Spring Valley feature front masonry exteriors. Step inside the home from the front porch and cross the foyer to the family room, kitchen and dining room. This large open concept area is perfect for entertaining and everyday living. The kitchen features an island with a stainless-steel sink, quartz countertops, 42' upper 'picture frame' cabinets, a pantry closet, and stainless-steel appliances. The powder room completes the downstair space and is located at the front of the home, off the foyer. Ascend the stairs to the second floor, where you'll find all the bedrooms, the optional gameroom, 2 full bathrooms and the utility room. The primary bedroom is located at the front of the home and includes an attached bathroom. Stretch out and relax at the end of your day in this spacious and private ensuite. The primary bathroom features a walk-in shower, cultured marble vanity with trench sink and a walk-in closet. All secondary bedrooms have amble closet space with wood shelving. Whether you use these rooms as an office, child's room or guest room, there is enough room for work, sleep, and play. The secondary bathroom includes a shower/tub combination and a cultured marble vanity with trench sink. This home features our America's Smart Home base package, which includes the Video Front Doorbell, Front Door Deadbolt Lock, Home Hub, Thermostat, and Deako(R) Smart Switches.