3
2
1489
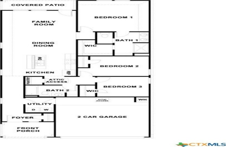
Property Description: JANUARY ESTIMATED COMPLETION. Check out the Caroline, one of our one story new homes available at Whisper South in San Marcos, Texas. This 3 bedroom, 2 bathroom home includes a 2 car garage all within 1,489 square feet of comfortable living space. Our homes in Whisper South feature three-sided masonry exteriors and the Caroline plan is available with 2 exterior options to choose from. From the covered front porch, step inside the home and cross through the foyer and long hallway. The utility room is tucked away off the hall and connects to the garage, making it a perfect mud room. The heart of the home is the open concept living space. The kitchen, dining and family room flow seamlessly into the other, making this space perfect for creating lasting memories. The kitchen features quartz countertops, an island with undermount sink, stainless steel appliances, pantry closet, and 36" upper cabinets. Enjoy the natural light from the side and rear windows plus the 8' to 9' sloped ceilings in this comfortable room. The primary bedroom is located off the family room and includes an attached bathroom. Start your mornings off right in the private space that includes a walk-in shower, double vanity with marble counter tops, private door to the toilet area, and a walk-in closet. The secondary bedrooms and bathroom are tucked away off the kitchen. Each secondary bedroom includes a closet with wood shelving and the hall bathroom includes a shower/tub combination. The Caroline includes vinyl flooring throughout the common areas of the home, and carpet in the bedrooms. All our new homes feature a covered back patio, full sod, irrigation system in the front and back yard, and a 6' privacy fence around the back yard. This home includes our America's Smart Home base package, which includes the Amazon Echo Pop, Front Doorbell, Front Door Deadbolt Lock, Home Hub, Thermostat, and Deako(R) Smart Switches.