4
3
2473
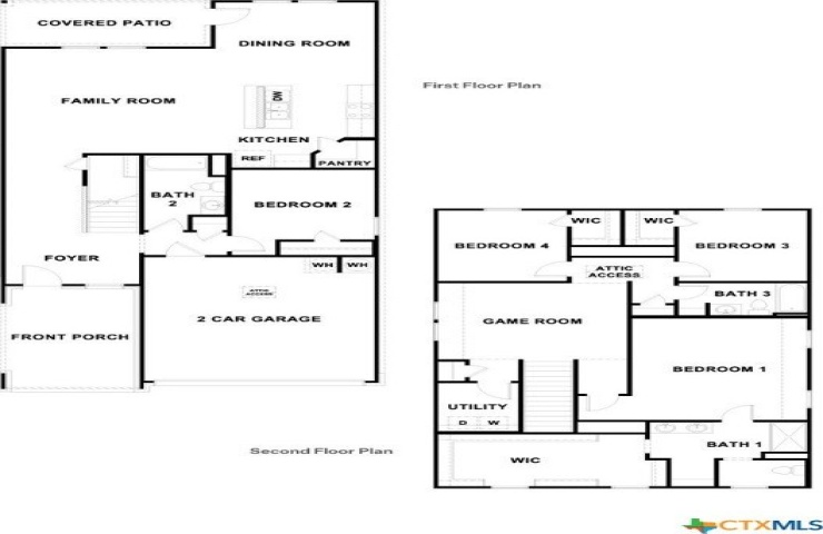
Property Description: MOVE IN READY! The Nicole is one of our most popular floorplans available at Whisper South in San Marcos, Texas. This two-story home offers 4 bedrooms, 3 bathrooms, a gameroom, and 2 car garage all within 2,473 square feet of comfortable living space. Entering the home cross the foyer and find a short hallway to the downstairs secondary bedroom and a full bathroom. Passing the staircase, continue through the foyer to the heart of the home, the living area. The family room, dining area, and kitchen are open, making entertaining and everyday living a shareable experience for family and friends. The kitchen features an island with undermount sink, quartz countertops, a corner pantry closet, 36" upper cabinets, and stainless-steel appliances, including a gas range. Moving upstairs, you'll enter the gameroom. The oversized primary bedroom is tucked away from the gameroom. Stretch out and relax at the end of your day in this spacious and private ensuite. The primary bathroom features a walk-in shower, double vanity with marble counter tops, private toilet area with a door, and an enormous walk-in closet. This will be the closet of your dreams, spacious enough to add a dressing island or chaise lounge for a full luxurious experience. The additional upstairs bedrooms and bathroom are located opposite the primary bedroom. The bedrooms feature walk in closets with wood shelving. Both secondary bathrooms include a shower/tub combination. The utility room rounds out the upstairs space, making laundry chores a breeze. The Nicole includes vinyl flooring throughout the common areas of the home, and carpet in the bedrooms. All our new homes feature a covered back patio, full sod, irrigation system in the front and back yard, and a 6' privacy fence around the back yard. This home includes our America's Smart Home base package, which includes the Amazon Echo Pop, Front Doorbell, Front Door Deadbolt Lock, Home Hub, Thermostat, and Deako(R) Smart Switches.