3
2
1200
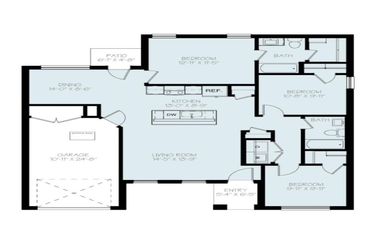
Property Description: Buy NOW and get up to $7,000 Use-It-Your-Way CASH! This home offers a timeless brick and vinyl exterior with a welcoming covered front entry. Inside, luxury vinyl plank flooring flows through the common areas, leading to an open-concept kitchen and living area. The kitchen boasts granite or quartz countertops, a spacious island with bar seating, stainless steel appliances, and an enclosed pantry for added convenience. Premium plumbing and lighting fixtures elevate the home's style. The secluded master suite features a walk-in closet, creating an idyllic retreat.