4
3
2106
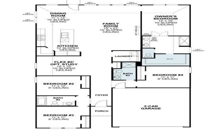
Property Description: Built by M-I Homes. Why You'll Love It Make yourself at home in the Pizarro floorplan, the affordable and functional open-concept design you’ve been dreaming of. This Smart Series plan features 4 bedrooms, 2 bathrooms, and open concept of flowing living space. As you enter the spacious foyer, you will find two private bedrooms and a full bathroom tucked off the entry. A third bedroom and significant storage space can be conveniently found further down the foyer with an option to convert storage into a third full bathroom. On the other side of the foyer is a spacious and bright flex room, an ideal space for everything from a quiet reading lounge to a perfect playroom. Continue into the open kitchen, dining area, and family room. Enjoy impressive included features throughout the kitchen such as granite countertops, a large kitchen island, and spacious upper and lower cabinets. Looking for even more space? Choose an add-on dining room extension or select an optional covered patio—great for outdoor entertaining! Enter a bright owner’s suite that is tucked at the back of the home, privately off of the family room. The owner’s bedroom features two large windows and an optional extended bay window for extra space and plenty of natural light. Enter your owner’s bath retreat, boasting a large walk-in shower, optional double vanities, and a spacious walk in closet. Contact us today to schedule your tour.