3
2
2171
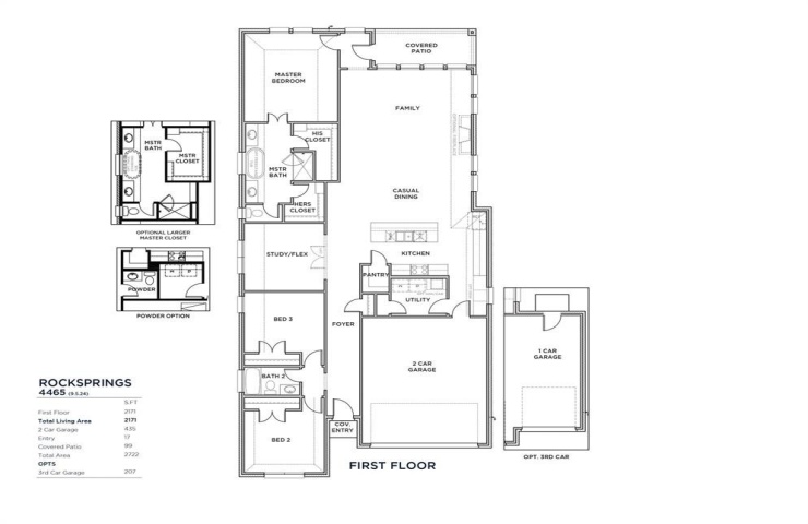
Property Description: The Rocksprings by Shaddock Homes elevates single-story living with a sophisticated design that showcases 3 generous bedrooms, 2.5 bathrooms, and a 2 car garage with study. Thoughtfully crafted with luxurious finishes and an open, flowing layout, this home blends comfort and elegance, creating an inviting sanctuary perfect for both grand entertaining and everyday retreat.