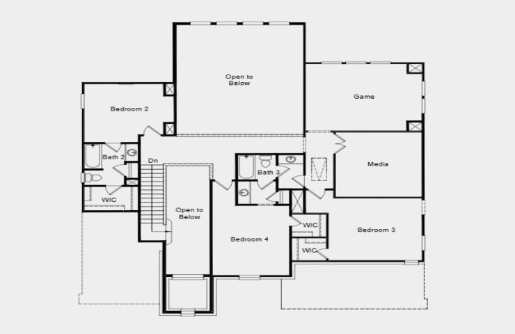
Property Description: What's Special: 2-Story Great Room with a Fireplace, Oversized Lot, Secondary Bedroom with an Attached Bath - New Construction - Ready Now! Built by Taylor Morrison, America's Most Trusted Homebuilder. Welcome to the Sapphire at 6808 Fort Parker Way in Highland Lakes! This home offers bright, open-concept living with thoughtful design and natural light throughout. From the covered front porch, step into a welcoming foyer flanked by a formal dining room and a private study with double doors. At the heart of the home, the great room flows seamlessly into the kitchen and casual dining area, featuring a center island, walk-in pantry, and generous cabinet space. The main floor primary suite is tucked away for privacy and includes a spa-like bath with dual vanities, a soaking tub, walk-in shower, two linen closets, and an oversized walk-in closet. A secondary bedroom with its own full bath, a convenient laundry room, and easy flow across the main level add to the home’s appeal. Upstairs, enjoy three additional bedrooms, a cozy media room, and a spacious game room. Located in McKinney, TX, this home blends serene outdoor living with modern comfort, complete with community amenities like a resort-style pool, fitness center, and scenic trails—all with no MUD or PID taxes and zoning to top-rated Prosper ISD. Additional highlights include: additional living space added to the primary bedroom, a soaking tub added to the primary bathroom, a large covered back patio, and a main floor bedroom with a full bathroom. Photos are for representative purposes only. MLS#21129659