5
4
4088
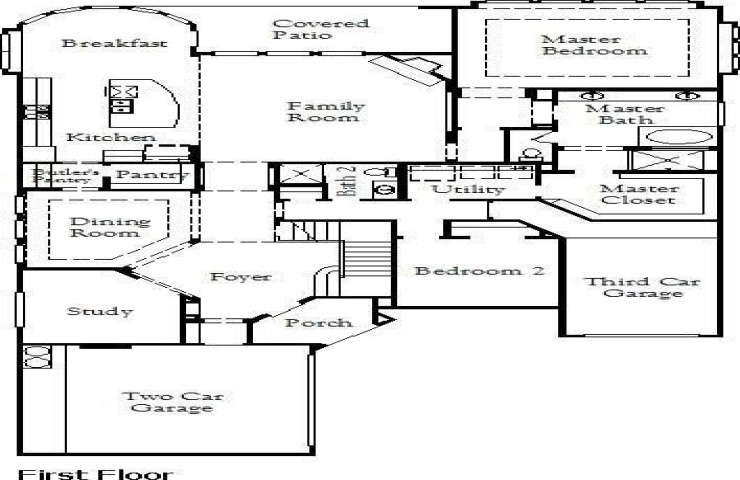
Property Description: MLS# 21130237 - Built by Coventry Homes - Const. Completed Jan 06 2026 ~ This beautifully designed 5-bedroom, 4.5-bathroom home, situated on a desirable corner lot, perfectly blends elegance and functionality. The inviting front elevation features a spacious porch with a cozy sitting area—ideal for relaxing outdoors. Inside, a grand curved staircase sets the tone for the thoughtfully designed layout. The main floor offers a formal dining room, private study, and a bright open-concept living area anchored by a striking fireplace. The chef-inspired kitchen connects seamlessly to both casual and formal dining spaces, making it perfect for everyday living and entertaining. Upstairs, enjoy a large game room and private media room, while generously sized bedrooms provide plenty of space to unwind. With 4.5 well-appointed bathrooms and smart design throughout, this home is as comfortable as it is stylish. Schedule your tour today!