4
3
2645
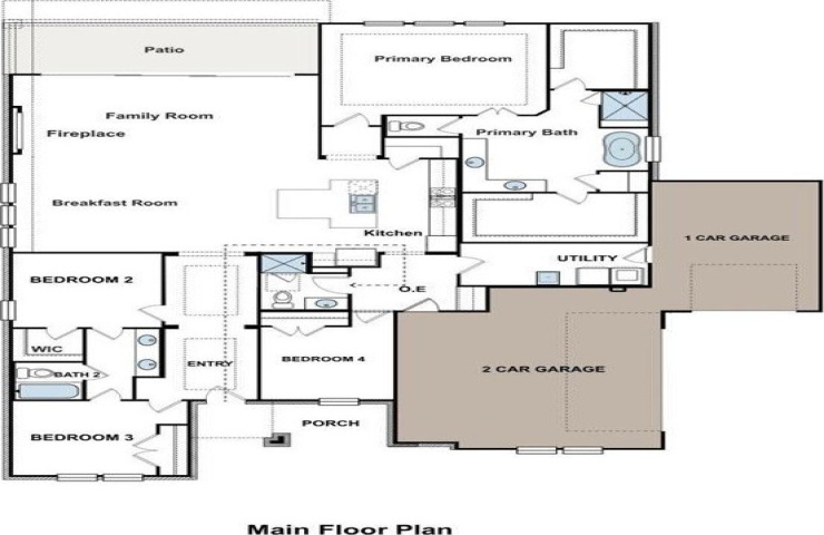
Property Description: From our grand Presidential Series, this stunning 2,645 SF Two-Story new construction home is GFO Home’s striking Jefferson Floor Plan offering 4 Bedrooms, 3 Bathrooms, and a spacious 3-car Garage on a sprawling One Acre Homesite in Mansfield’s Premier Acreage Community- Eagle’s Estates!! Highlights include luxury RevWood flooring in common areas, an Open Concept Family Room with soaring 11’ FT Ceilings and elegant Electric Fireplace, as well as a Gourmet Chef’s Kitchen featuring a large Center Island, Upgraded Stainless Steel Appliances, a Walk-in Pantry, and attached Breakfast Room. Enjoy a spacious Extended Covered Patio with modern 15’ FT Glass Slider Doors leading out to the Private Backyard, as well as a luxurious Primary Suite and Spa-Inspired Primary Bathroom with a designer Free-Standing Tub, Walk-In Frameless Glass Shower, and Oversized Walk-In Closet. You’ll also find an additional guest suite with attached bathroom, and 2 more bedrooms and one more full bath. Discover additional functionality with a mudroom and laundry room off the garage entrance. Experience high-end living at its finest with GFO Home’s Jefferson floor plan in Mansfield’s Premier Acreage Community- Eagle’s Estates! Enjoy living in a beautiful & scenic community with stunning sunsets, gorgeous views, and beautiful surrounding greenery- all on One Acre Homesites! Minutes away from Historic Downtown Mansfield, your family will have easy access to shopping, dining, and family fun! Only a short drive to the heart of Fort Worth and zoned to Mansfield ISD. Estimated Completion April 2026.