5
3
2497
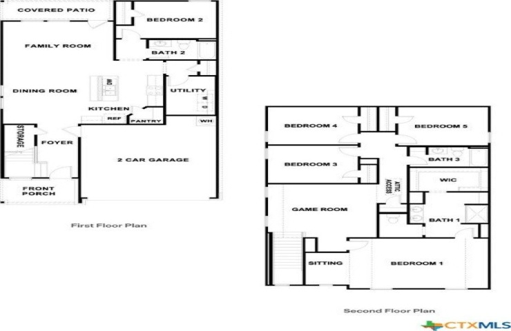
Property Description: FEBRUARY ESTIMATED COMPLETION. The Madison is our largest floorplan available at Whisper South in San Marcos, Texas. This beautiful two-story home features 5 bedrooms, 3 bathrooms, a gameroom, and 2 car garage across 2,497 square feet of modern living space. Entering the home, you'll cross the foyer to the open concept living space. The kitchen faces out to the dining room and family room, allowing for conversations to flow easily across the room as you make dinner and unwind from your day. Enjoy the 9' ceilings and natural light from the three rear windows. The kitchen features an island with undermount sink, quartz countertops, a pantry closet, 36" upper cabinets, and stainless-steel appliances, including a gas range. A secondary bedroom and full bathroom are located off the kitchen, perfect for your guests or any family member that need their own space. The oversized utility room is also located off the kitchen and includes a closet for extra storage. Ascend the stairs to the second floor and you'll enter the gameroom. The primary bedroom is located at the front of the home. This oversized private ensuite includes an extra sitting area as well as an attached bathroom. Enjoy the walk-in shower double vanity with marble counter tops, private toilet area with a door, and an enormous walk-in closet. Three additional bedrooms and a full bathroom complete the upstairs space. Each bedroom has a closet with wood shelving and both secondary bathrooms have a shower/tub combination. The Madison includes vinyl flooring throughout the common areas of the home, and carpet in the bedrooms. All our new homes feature a covered back patio, full sod, irrigation system in the front and back yard, and a 6' privacy fence around the back yard. This home includes our America's Smart Home base package, which includes the Amazon Echo Pop, Front Doorbell, Front Door Deadbolt Lock, Home Hub, Thermostat, and Deako(R) Smart Switches.