3
2
1795
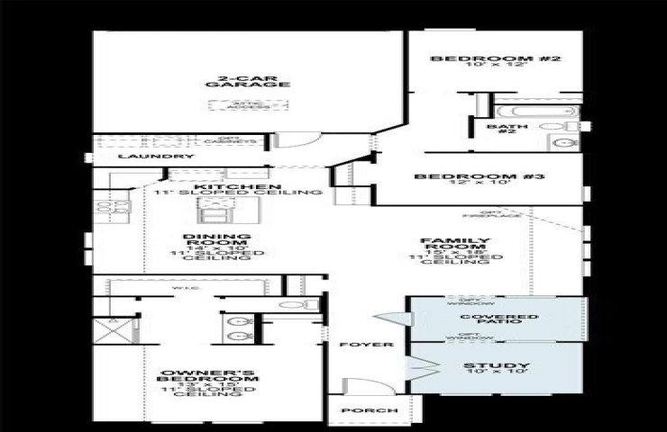
Property Description: Built by MI Homes. 2701 Lewisville Road, Celina, TX showcases a carefully designed single-story home in a well-established neighborhood. Key Features: • 3 bedrooms with owner’s bedroom in its own private corner • 2 full bathrooms • Front-load garage • Open-concept layout connecting kitchen, dining, and living areas • Optional flex space or study for added versatility This single-story home combines practical design with comfortable living. The open floorplan allows the main areas to flow naturally, creating a bright and welcoming space for daily life and entertaining. Each room has been arranged to maximize functionality and comfort. The owner’s bedroom in its own private corner serves as a peaceful retreat, while the remaining bedrooms provide flexible options for family, guests, or a home office. Modern finishes and thoughtful attention to detail enhance the overall livability of the home. Neighborhood & Location Benefits: • Close to local parks and recreational spaces • Family-friendly community with well-planned streets and amenities • Easy access to nearby schools and shopping • Convenient connections to major roads for commuting Schedule a visit today!