4
3
2109
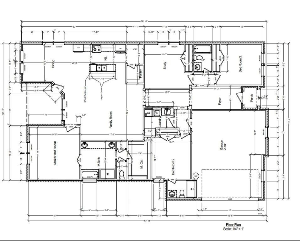
Property Description: Discover the perfect blend of luxury, comfort, and craftsmanship in this new custom home situated on a spacious 0.60-acre lot. With a thoughtfully designed floor plan, modern finishes, and flexible living spaces, this home is built to impress from the moment you walk in!