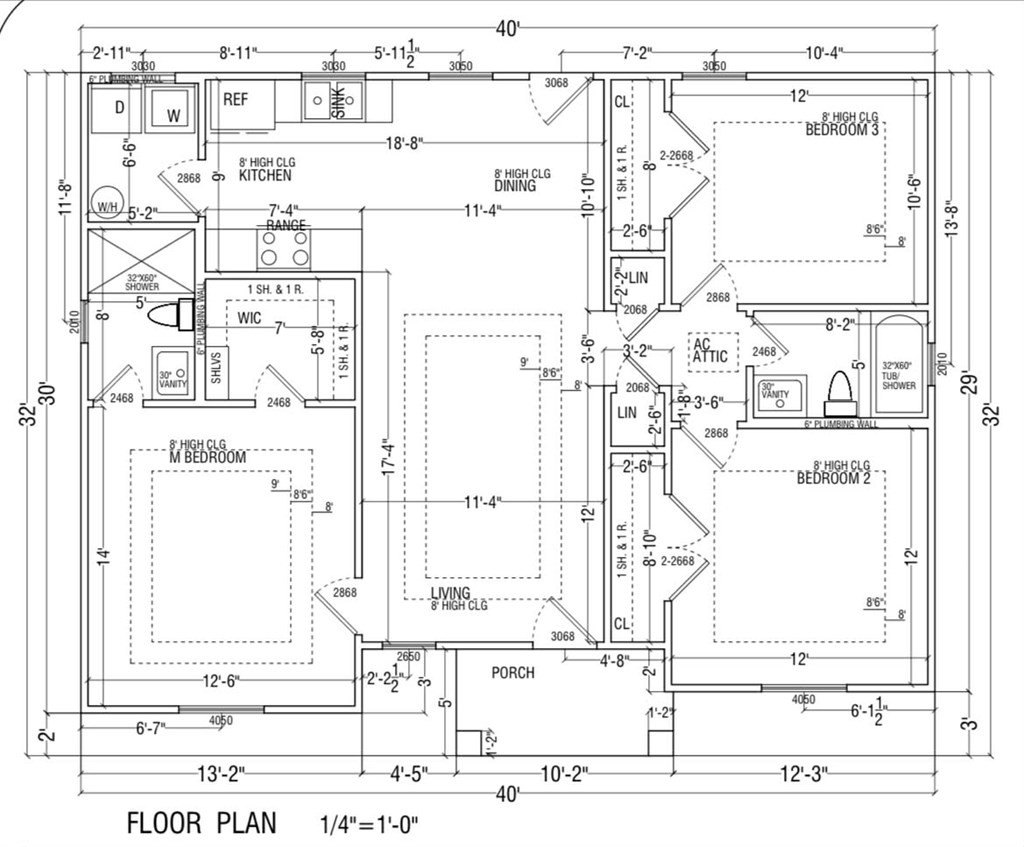
457 La paloma Drive Eagle Pass, Texas 78853 Listing ID 81930
3
2
1145
Property Description: New Home Construction!!! Located on 457 La Paloma Drive home has 3 bedrooms 2 full baths with 1,145 sqft of living area! For more info please contact listing agent.