4
3
2257
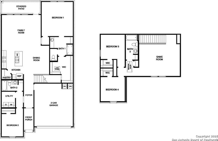
Property Description: Tour The Mitchell floor plan at Brookstone Creek in San Antonio, TX. This home delivers the space, comfort and flexibility your lifestyle demands - offering 2257 square feet, four bedrooms and 3 full bathrooms across a smart and functional two-story layout. Your new home comes equipped with a full landscaping and irrigation package, ensuring both beauty and curb appeal. The heart of the home is the open-concept kitchen, dining and living room area where you'll enjoy gathering with family and friends. The kitchen showcases stainless steel appliances, quartz countertops, flat panel cabinetry, an elegant kitchen island with a deep farmhouse-style sink and white subway tile backsplash for a timeless finish. Your primary bedroom suite is located on the main level and tucked away toward the back of the home for privacy. It includes a spacious, tiled walk-in shower, dual vanity sinks and a walk-in closet. A secondary bedroom and full bath on the first floor offer an ideal setup for guests, a nursery or multi-generational living. Upstairs, two additional bedrooms are situated alongside a versatile game room, perfect for move nights, study space or a secondary living area. Every bedroom features quality carpet flooring, large windows and ample closet space. This home includes our HOME IS CONNECTED base package. Using one central hub that talks to all the devices in your home, you can control the lights, thermostat and locks, all from your cellular device. Additional features include a covered patio (per plan), vinyl plank flooring throughout the main living areas, and a pre-plumbed water softener loop. Whether hosting guests downstairs or enjoying quiet time upstairs, The Mitchell floor plan offers dynamic spaces and modern finished - right here in beautiful Brookstone Creek.