4
3
3537
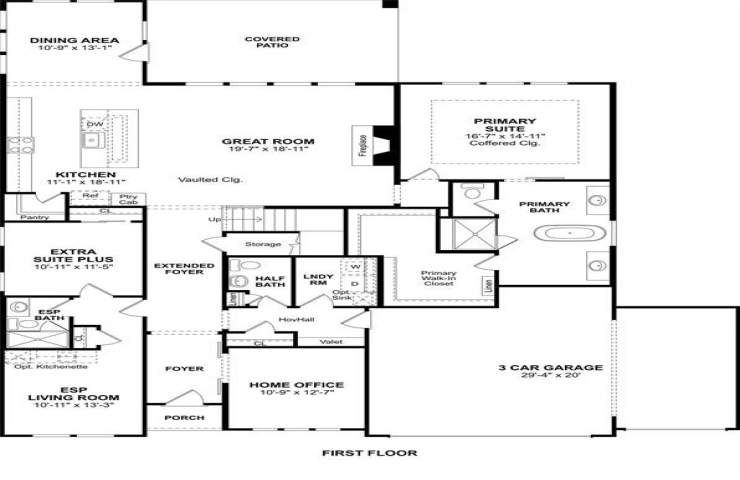
Property Description: Fabulous two-story home located at Heath Golf and Yacht Club in Heath! Private home office at the front of the house, as well as an extra suite plus with ensuite bath and attached living room. Great room features a cozy center fireplace and a wall of windows that floods the room with sunlight. Kitchen has quartz countertops, grey shaker cabinets, and stainless steel appliances. Two secondary bedrooms, a hall bath, and a welcoming loft space located on the second floor.