4
3
3202
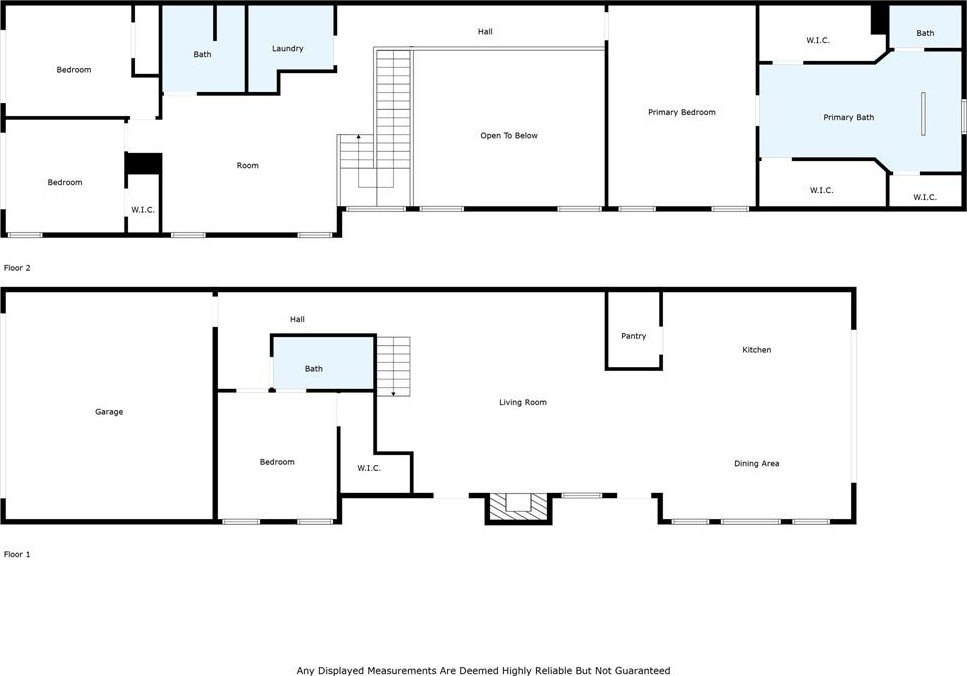
Property Description: This west facing modern contemporary is walking distance to Lower Greenville and a 5-minute walk to The Granada. The first floor has a dramatic 25' open to below with the fireplace as the focal point of the living room. There is a glass wine storage area separating the living room from the kitchen and dining. The kitchen features custom white oak cabinetry, a center island with 5cm quartzite and a waterfall edge, a 5-burner Bertazzoni gas range, a built-in refrigerator and freezer, and a walk-in butlers pantry. There is a sliding glass door that opens from the kitchen and dining room to the covered outdoor patio and backyard. The outdoor patio has a built-in outdoor kitchen, complete with a 4-burner Blaze gas grill with room for a small refrigerator. On the opposite side of the home, there is a bedroom with an ensuite bathroom - perfect for extended guests or an office. Walking up the wood and metal floating staircase, you're greeted with a game room, complete with a dry bar, at the top of the landing. Next to the game room are two bedrooms (the only area with carpet) and a separate bathroom. The primary is on the other side of the house for maximum privacy. The primary not only is gigantic, but has two separate closets with custom white oak shelving. The primary bathroom is a luxurious masterpiece with a soaking tub as the primary focal point, in front of a 12' tall glass shower with dual shower heads and a rainforest shower head in the center. There are separate bathroom vanities, also custom white oak, with quartz countertops. You'll also find an oversized garage with a tankless water heater, a Hunter sprinkler system, and an EV charger for your electric vehicle. Feeding into the highly sought after Mockingbird Elementary School, this is a home that has all the jaw dropping elegance coupled with being next to one of the most popular entertaining districts in the city of Dallas. Live right between Downtown Dallas and Plano - this location can't be beat.