4
2
2085
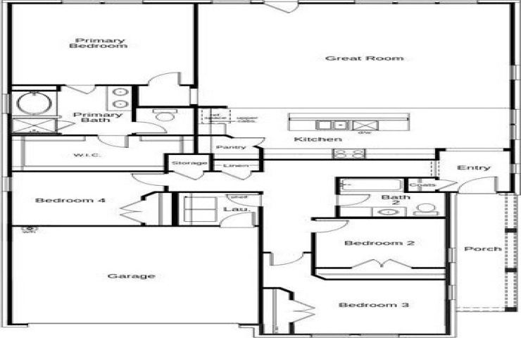
Property Description: Discover this thoughtfully designed home featuring an open concept kitchen and living area, highlighted by a stained entry door and 5-panel interior doors throughout. The gourmet kitchen boasts quartz countertops with edge detailing, a stylish backsplash, stainless steel appliances including a gas range with no-preheat and air fry functions, a 12” cabinet above the refrigerator, and a walk-in pantry. The primary bath offers a separate tub and tiled shower, an extended 36” vanity with sink and storage, plus an elongated toilet. Outside, enjoy an extended patio slab and a welcoming front porch. Additional touches include stone veneer exterior, vinyl plank flooring, vinyl windows, smartkey entry, cordless blinds, spacious primary closet, USB charging ports, and rocker switches throughout.