4
3
2461
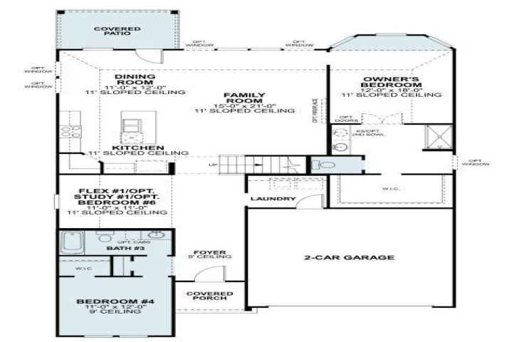
Property Description: Built by MI Homes. Located in Providence Village, Texas, 13125 Limestone Street presents a thoughtfully designed two-story home. The open-concept layout seamlessly connects kitchen, dining, and family areas, creating an inviting environment for daily living and entertaining. Key features include 4 bedrooms, 3 full bathrooms, and a 2-car garage. This new construction home maximizes functionality while maintaining an inviting atmosphere. The main-level owner's bedroom, which features an en-suite bathroom and walk-in closet, offers convenience and privacy. Additional bedrooms provide flexibility for family or guests, and the versatile bonus room gives you space for a home office, gym, or kids’ playroom. The open-concept layout allows natural light to flow through the living spaces, creating a welcoming environment for entertaining or relaxing at home. Schedule your visit today!