4
2
1870
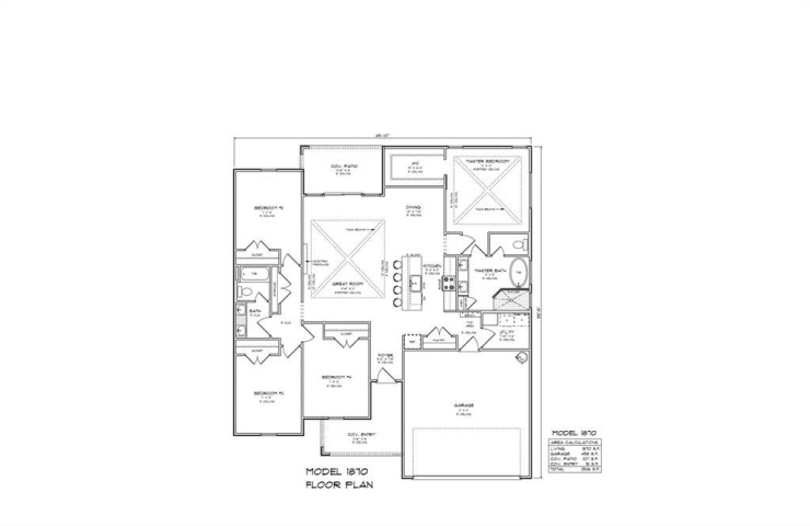
Property Description: New construction by True Texas Builders currently under way in Tolar, Texas. This 1,870 square foot home delivers clean design, strong details, and everyday functionality with 4 bedrooms, 2 full bathrooms, and a 2 car garage. Beamed ceilings in the living room and primary bedroom add character and set the tone for the home. The open living area is centered around an electric fireplace, creating a comfortable and inviting space that works for both daily living and entertaining. Black and gold plumbing fixtures in the bathrooms bring a modern edge and intentional contrast, paired with must see lighting selections that elevate the overall look. The primary suite is designed for comfort, featuring a spacious bathroom with a spa style soaking tub and a well laid out design. Three additional bedrooms offer flexibility for guests, home office space, or growing households. The 2 car garage adds practical storage and convenience to a layout that is both efficient and well thought out. Expected completion is early spring 2026. A solid opportunity to own a new construction home in Tolar with the quality and craftsmanship True Texas Builders is known for.