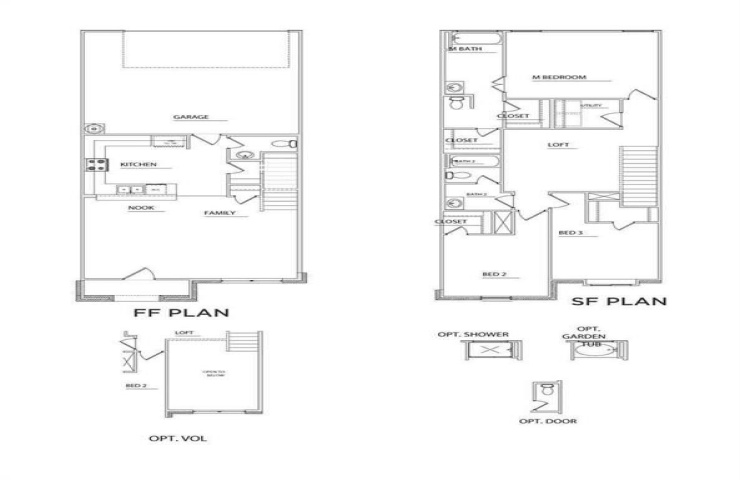
Property Description: MLS# 21135296 - Built by HistoryMaker Homes - Jan 2026 completion! ~ Discover this stunning new construction townhouse in Mockingbird Estates, offering 1,731 sq ft of modern living space. This traditional-style home, set to be completed by January 31, 2026, features 3 primary bedrooms and 3 bathrooms (2 full, 1 half), perfect for hosting guests. The open floorplan boasts an eat-in kitchen with granite countertops, a pantry, and a spacious living area. Enjoy the convenience of smart home technology, high-speed internet, and walk-in closets. With a double vanity and luxurious finishes throughout, this home blends comfort and style. Additional highlights include a 2-car garage, central heating and cooling systems, and beautiful landscaping with rain gutters. Located within the Fort Worth ISD, close to Loweryrd Elementary, Jean Mcclung Middle, and Eastern Hills High School, this home is an ideal choice for your family.