3
2
1687
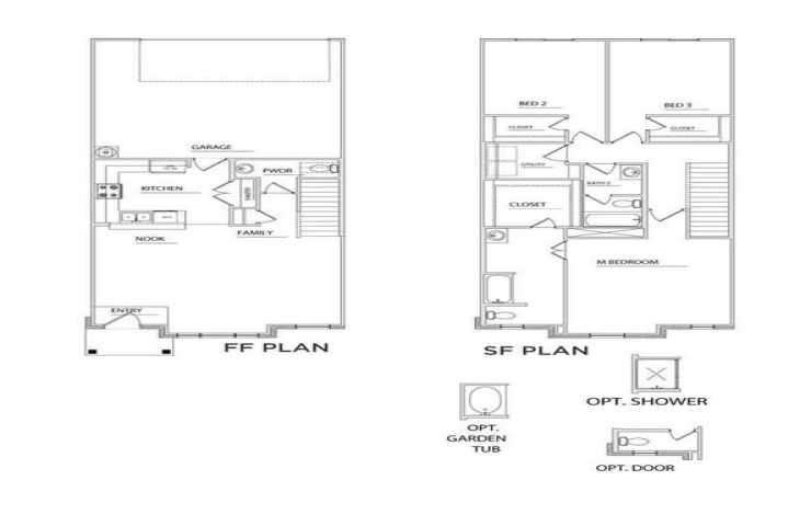
Property Description: MLS# 21135315 - Built by HistoryMaker Homes - Jan 2026 completion! ~ Discover modern living in this stunning 3-bedroom, 3-bathroom townhouse located in the desirable Mockingbird Estates Townhomes. With 1,687 sq. ft. of thoughtfully designed space, this traditional home features an open floorplan that seamlessly connects the living and dining areas. The eat-in kitchen boasts granite countertops, a pantry, and is wired for data, ensuring a perfect blend of style and functionality. Enjoy the luxury of three primary bedrooms, each with walk-in closets and double vanity bathrooms. Additional highlights include a smart home system, central heating and cooling, and elegant flooring with carpet and luxury vinyl planks. This property, estimated for completion by January 31, 2026, is situated within the highly regarded Fort Worth ISD, close to Loweryrd Elementary and Eastern Hills High School. Don’t miss the opportunity to secure this exceptional home in an inviting community.