4
3
2680
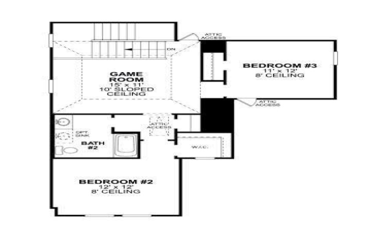
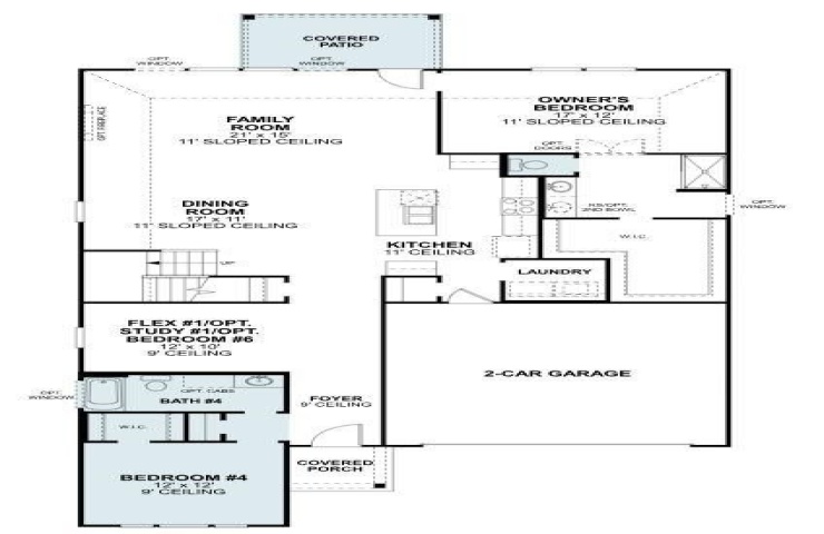
Property Description: Built by M-I Homes. Welcome to your future home at 13196 Zion Drive in Providence Village, TX! Located on a spacious pie shaped lot, this home includes a stunning two-story layout in a fantastic location, walking distance from the community amenity center. This 2-story, new construction home built by M-I Homes offers a modern lifestyle with 4 bedrooms plus a flex room and game room, 3 full bathrooms, and a spacious open-concept layout. Upon entering, you'll be greeted by wood-look tile flooring and an open floorplan that seamlessly connects the kitchen, dining area, and living space. The kitchen is a chef's delight with modern stainless steel appliances and ample granite counter space, perfect for hosting gatherings or preparing delicious meals for your loved ones. A lovely, herringbone tiled backsplash contributes to the modern appeal. The bedrooms are well-sized, offering a cozy retreat at the end of the day. This layout accommodates 2 bedrooms on the first floor, with the remaining two bedrooms reside upstairs. With plenty of natural light throughout, each room feels warm and inviting. This home also boasts 3 bathrooms, ensuring convenience and comfort for all residents. Step outside to the covered patio, where you can enjoy your morning coffee or unwind after a long day while appreciating the peaceful surroundings. The outdoor space provides a perfect setting for relaxing or entertaining guests. With a 2-car garage and a spacious driveway, you'll have ample room for your vehicles or guests' parking needs. The home's location offers easy access to nearby amenities, schools, parks, and other conveniences, making it an ideal place to call home. Don't miss the opportunity to make this beautiful new home your own and enjoy the comfort and luxury it has to offer—schedule your visit today to learn more!