4
3
2712
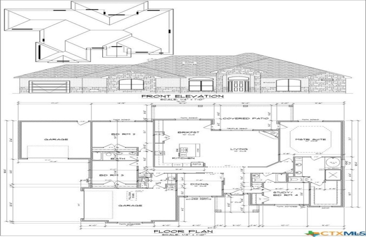
Property Description: Welcome to 11144 Golden Eagle Avenue in Salado, Texas, a beautifully crafted Ben Atkinson home offering quality construction, thoughtful design, and timeless style. This spacious 4-bedroom, 3-bath residence spans 2,712 square feet and features an open-concept layout ideal for both everyday living and entertaining. The inviting living area flows seamlessly into a well-appointed kitchen designed for functionality and gathering, while large windows provide abundant natural light throughout the home. The primary suite is a true retreat, highlighted by a huge walk-in closet and a private ensuite bathroom that offers comfort and convenience. Three additional bedrooms provide generous space and flexibility for guests, a home office, or a growing household. With attention to detail, quality craftsmanship, and a desirable Salado location, this home offers the perfect blend of comfort, space, and style. Conveniently located near local amenities, dining, and schools, 11144 Golden Eagle Avenue is a wonderful place to call home.