4
3
3315
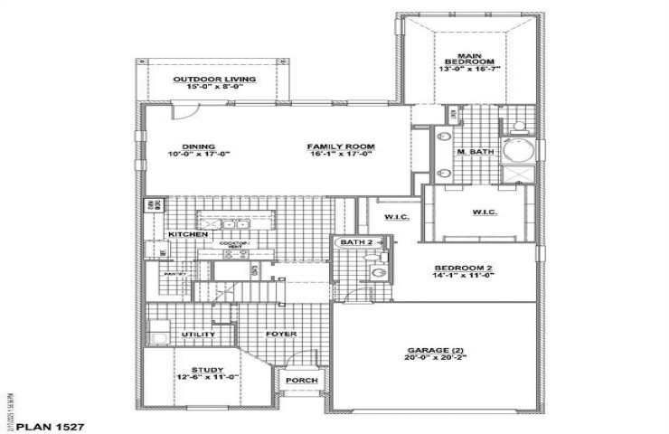
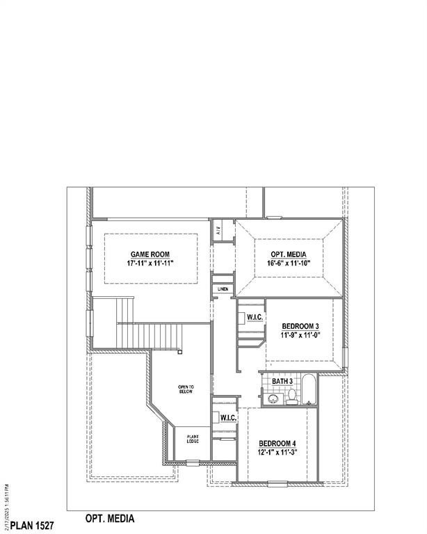
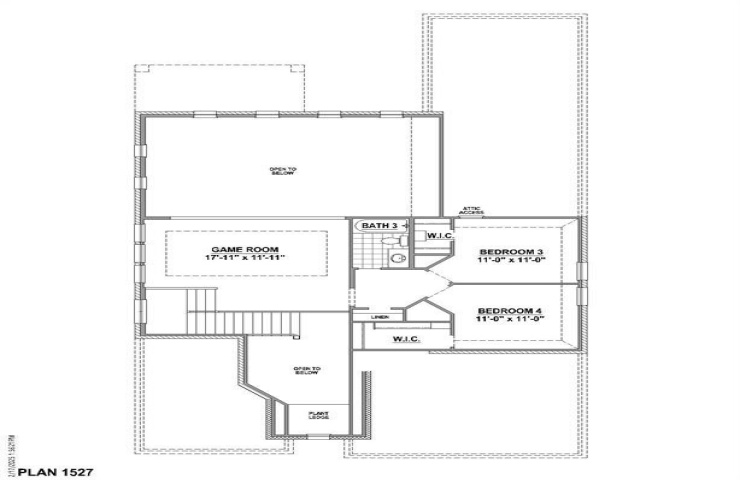
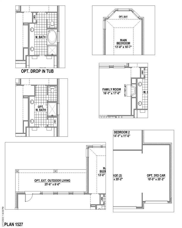
Property Description: Stunning 2 story American Legend home with high ceilings in family room, 4 bedrooms, 3 full baths, study, oversized outdoor living area, game room, media room and a 2.5-car garage on a oversized lot. A wide foyer greets you when you enter the home and leads you to the private study and laundry room. Across from the stairs you will access the 2.5-car garage, a secondary bedroom and a full bathroom. The chef’s kitchen includes a huge walk-in pantry, an abundance of cabinetry while being open to the dining space and a family room with stacked windows. The main bedroom is located at the back of the home and boasts a large walk-in closet, a vanity with dual sinks and a garden tub. A game room, 2 secondary bedrooms and a full bathroom and media room are on the second floor which perfectly completes the home. This design also includes many options to customize the home to fit your unique needs while nestled on an East facing lot.