3
2
1351
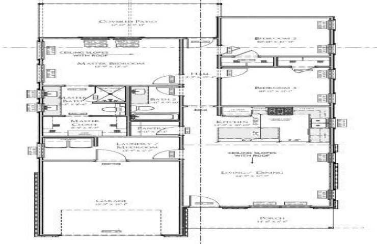
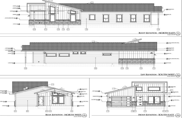
Property Description: Tucked among the trees on 1.5 wooded acres in Wills Point, TX, this new construction home currently being built offers a rare blend of thoughtful design, quality craftsmanship, and quiet country charm. With 1,351 square feet, 3 bedrooms, and 2 bathrooms, the layout is intentionally designed to feel comfortable, efficient, and welcoming from the moment you step inside. The home’s modern exterior and clean lines give it a fresh, timeless look, while the interior will feature open, light-filled living spaces that flow naturally for everyday living. Each square foot is used with purpose—creating a home that feels just right in size, easy to maintain, and effortless to enjoy. Surrounded by mature trees, the property offers a sense of privacy and peace, with room to relax, explore, or simply enjoy the sounds of nature. The setting feels tucked away, yet remains conveniently close to town—providing the best of both worlds. Brand-new construction means modern systems, energy efficiency, and the confidence of starting fresh in a home built with care and attention to detail. Whether you’re looking for something new, something manageable, or simply something well-built in a beautiful setting, this home delivers charm, comfort, and lasting value.