4
4
3686
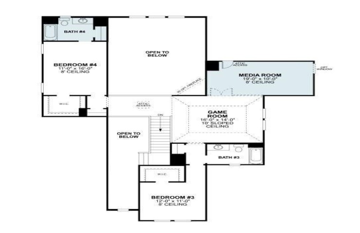
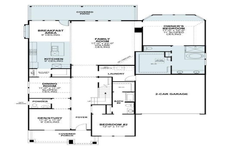
Property Description: Built by M-I Homes. This exceptional new construction home at 1205 Sweet Pea Road in Celina, Texas, features a thoughtfully designed 4-bedroom, 4-bathroom layout with an open-concept design that seamlessly connects the main living spaces. Upgrades like a gourmet kitchen layout, an extended covered patio, an enhanced owner's suite, and even an upstairs media room make this home something to marvel at. The home's design maximizes functionality while maintaining a welcoming atmosphere. The main-level owner's bedroom, complete with an extended bay window, a deluxe en-suite bathroom and a walk-in closet, provides a private retreat, while the additional bedrooms offer flexible space for family, guests, or home offices. The open-concept main floor creates a natural flow between the kitchen, dining, and living areas, perfect for daily living and entertaining. Located in a desirable Celina neighborhood with unparalleled amenities, this 2-story home combines quality craftsmanship with thoughtful design. Ready this spring and built to modern standards, it represents an excellent opportunity to own a spacious, well-appointed home in a sought-after community. Schedule your visit today!