4
2
2427
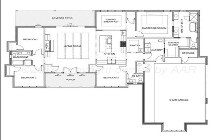
Property Description: Discover Refined Living In This Stunning 4-Bedroom, 2.5-Bath New Construction Home Featuring a 3-Car Garage On A Generous 1.3-Acre Lot. Built by Breck Homes w/ meticulous attention to detail & energy efficiency. Energy-efficient construction includes spray foam insulation, Class 4 impact-resistant roof, & Pella windows. Throughout the home, enjoy soft-close cabinetry w/ abundant storage, elegant quartz countertops, & sophisticated gold accents. An inviting covered front porch opens to a spacious great room showcasing a stunning stone fireplace, custom built-in cabinets, floating shelves, & a beam-accented ceiling that adds warmth & character.The gourmet kitchen features a striking fluted wood-stain island w/ bar seating, 5-burner gas cooktop, double ovens, & a walk-in pantry complete w/ microwave & ample storage for appliances & essentials. Retreat to the isolated primary bedroom featuring dual vanities, a freestanding soaking tub, & elegant tiled shower. The oversized walk-in closet conveniently connects to the utility room for ultimate functionality. Bedrooms 2 & 3 share a well-appointed full hall bath, while the isolated 4th bedroom offers flexibility as a guest room or home office w/ convenient powder bath access nearby. Experience quality craftsmanship & modern luxury - schedule your showing today!