5
4
4069
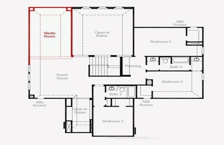
Property Description: MLS# 21142825 - Built by Coventry Homes - Jan 31 2026 completion! ~ This luxurious 5-bedroom, 4.5-bathroom home is designed for both comfort and entertainment. With breathtaking hillside views on an oversized corner homesite, the home offers a gorgeous patio, perfect for outdoor relaxation or hosting guests. Inside, enjoy a fully upgraded interior featuring high-end finishes and an open-concept layout. The spacious media room provides the ultimate setting for movie nights, while the well-appointed kitchen and living areas offer ideal spaces for gatherings. With its stunning design and top-tier upgrades, this home is a true entertainer’s dream. Schedule your tour today.