3
2
1655
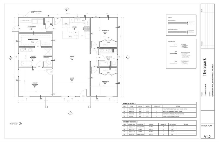
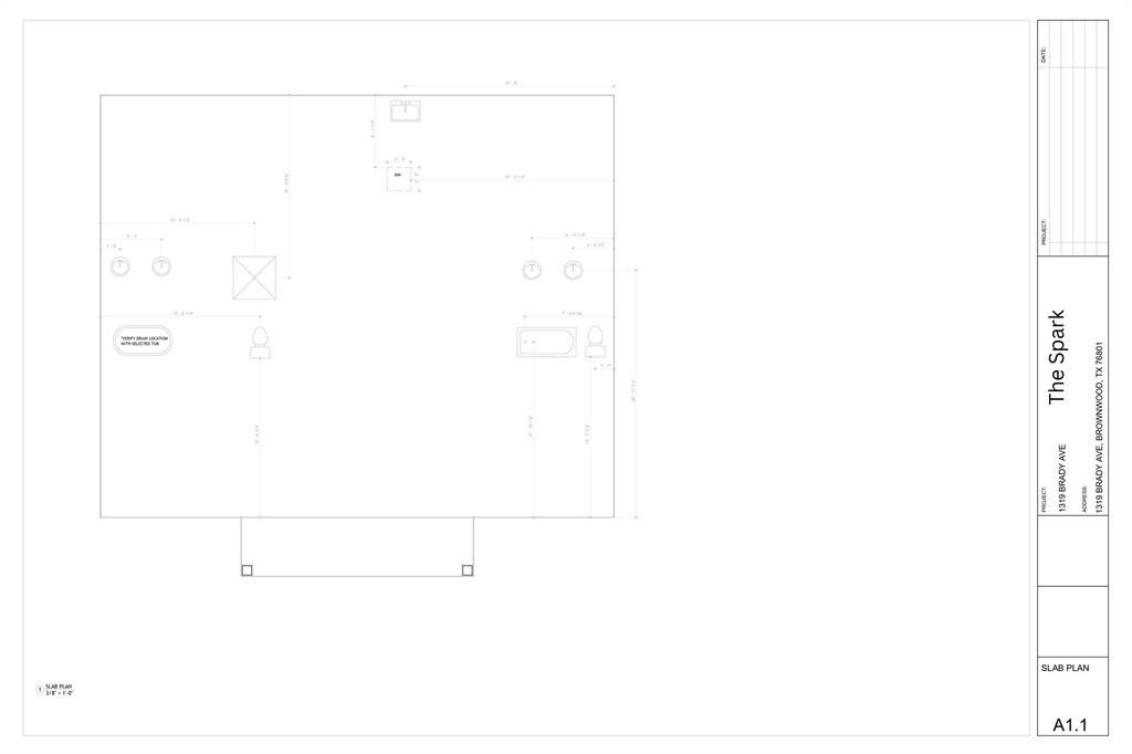
Property Description: This newly constructed one-story home, scheduled for completion in March 2026, offers a Modern Farmhouse and thoughtful layout designed for comfortable living. The interior features an open floor plan with a spacious island kitchen, walk-in pantry, providing plenty of room for both everyday meals and entertaining. The home includes one large living area, an interior utility room, and a clean 3-bedroom, 2-bathroom design that maximizes functionality. With its contemporary finishes and efficient layout, this property offers an excellent opportunity to own a brand-new home built for today's lifestyle.