5
5
4814
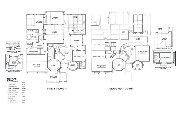
Property Description: New Construction with gorgeous white brick on a greenbelt lot backing to trees in the highly sought after master planned community of Light Farms will not last long! Dramatic 2 story entry and staircase to include a second platform landing to the raised study. Open railing overlook into the family with a separate opening to the kitchen showcasing a gambrel ceiling from the cooktop to the casual dining wall of windows. Your gourmet kitchen comes with Calcutta Izaro Quartz, KitchenAid appliances and extensive custom cabinetry to the ceiling. The freestanding tub is focal in the spa inspired master bath with separate vanities, his and her walk-in closets, large linen closet and private shower. This is a brand-new design with showstopping 2 story windows along the rear elevation on a one-of-a-kind greenbelt treed lot. You are sure to fall in love with this open, livable home design on this 82’ wide site.