4
2
1835
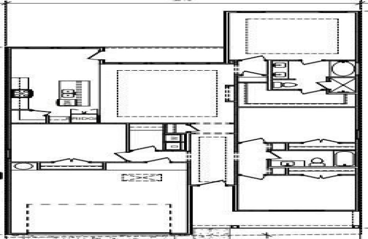
Property Description: Up to $20,000 in seller and preferred lender incentives available for qualified buyers on this brand-new 4-bedroom, 2-bath home featuring an open floorplan, covered outdoor spaces, and plenty of storage throughout. This home offers an open layout with good natural light throughout the main living areas. The living room features an electric fireplace that adds a modern focal point without added maintenance. The kitchen opens to the living and dining areas and provides ample cabinet and counter space for everyday use. Brand new stainless steel appliances included; refrigerator, range, microwave and dishwasher. A large island anchors the space and is finished with quartz countertops, which continue throughout the home for a clean, cohesive look. The primary bedroom is set apart from the other bedrooms, offering added privacy. The primary bathroom includes a standalone soaking tub, separate walk-in shower, double vanity, and a spacious walk-in closet. The laundry room includes a mud-style storage area, creating a practical drop zone for shoes, bags, and daily items. A covered front porch offers a welcoming entry, while the covered back patio extends the living space outdoors for everyday use. Located minutes from Fair Park, Downtown Dallas, Deep Ellum, and major highways, with convenient access to dining, events, and other city amenities. Seller and preferred lender incentives are available for qualified buyers. Up to $20,000 in combined down payment and closing cost assistance may be available when using the preferred lender, subject to lender approval and qualification. This move-in-ready, brand-new home offers practical features, modern finishes, and convenient city access.