4
4
3695
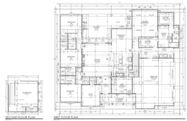
Property Description: MLS# 21144911 - Built by Kindred Homes - Jan 2026 completion! ~ Discover this stunning new construction single-family residence, set for completion in January 2026, nestled in the desirable Highlands at Northlake, part of the Northwest ISD. Spanning 3,695 square feet, this traditional home features four spacious primary bedrooms and four full bathrooms, making it perfect for families or guests. The open floor plan encompasses two living areas, a dining area, and a gourmet kitchen complete with a kitchen island, large double fridge and freezer, and separate prep kitchen for the chef enthusiast. White oak hardwood naildown floors, quartz countertops, upgraded tile, and carpet are just a few of the gorgeous finishes included. Enjoy outdoor entertaining on the covered patio with an attached grill and outdoor kitchen. Additional highlights include two fireplaces, sound system wiring, and a three-car garage. Energy bills are significantly lowered with fully encapsulated foam insulation, tankless water heater, and a Bosch HVAC system. Situated in a serene cul-de-sac with no direct neighbors behind it, this exquisite home combines modern amenities with thoughtful design for a truly exceptional living experience.