5
5
4001
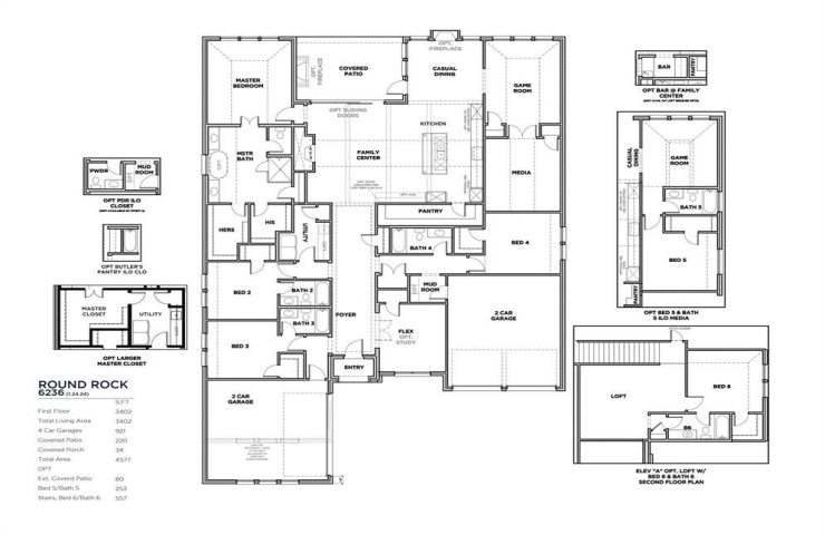
Property Description: Ready just in time for the New Year, this gorgeous creamy white brick single-story home offers an en-suite bedroom and bath with a separate loft on the half story up, totaling 4,001 square feet in a master-planned community. You must see this brand-new plan featuring five bedrooms, five baths, a study, game room, and a separate media room on the first floor, along with a three-car garage. Enjoy vaulted ceilings from the kitchen to the family room with stunning walls of windows that provide an abundance of natural light. Carrara Marmi quartz countertops, a KitchenAid commercial cooktop, and site-finished nail-down white oak hardwood flooring throughout the first floor are just a few of the highlights in this gorgeous custom home. The primary suite features separate closets and vanities, a huge walk-in shower, and a separate tub, plus abundant storage with extensive walk-in attic space on the half story up. The home also offers a gorgeous backyard with a covered patio on an interior 13,214-square-foot lot at the end of the cul-de-sac. Come see this extraordinary new construction home; it will not last long.