5
5
4900
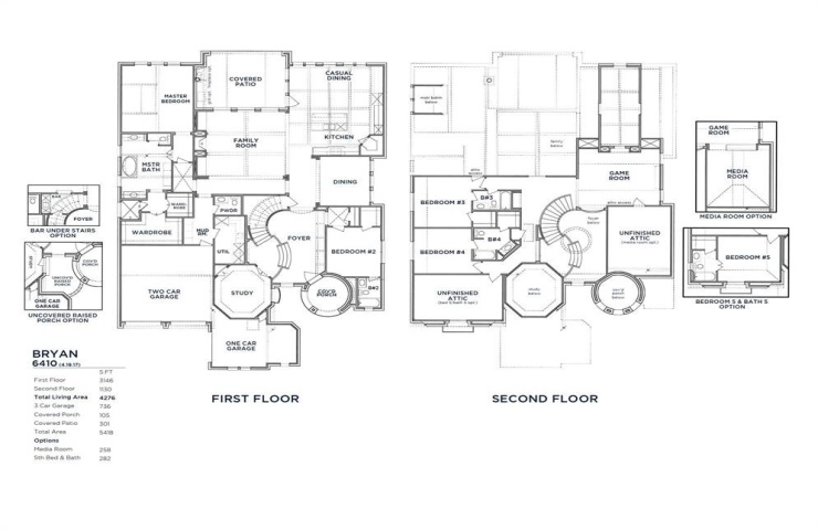
Property Description: New construction with gorgeous Scottsdale brick on an interior lot will not last long. This home features a dramatic two-story entry and staircase, including a second platform landing leading to the raised study. Open railing overlooks the family room, with a separate opening to the kitchen showcasing a gambrel ceiling extending from the cooktop to the casual dining wall of windows. The gourmet kitchen includes Calcutta Idillio quartz countertops, KitchenAid appliances, and extensive custom cabinetry. The utility room is ready for action with wall-to-wall cabinets, a sink, and built-in refrigerator space. The spa-inspired primary bath highlights a freestanding tub as its focal point and includes separate vanities, his and her walk-in closets, a large linen closet, and a private shower. This brand-new design also features show-stopping two-story windows along the rear elevation, and you are sure to fall in love with this open, livable home design.