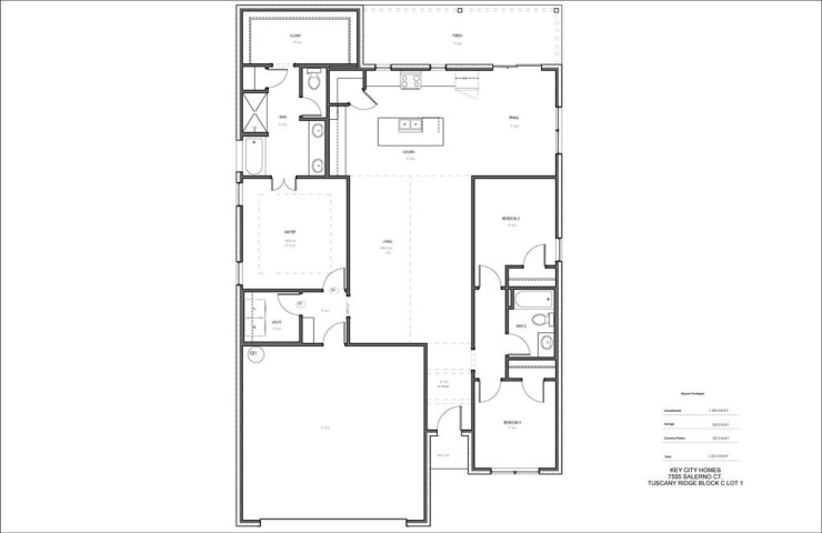
3
2
1785
Property Description: This 3 bed 2 bath home has an open concept and a neutral color palette while still leaning toward a modern aesthetic. The kitchen features an island with seating, while the living room boasts plenty of natural light, and vaulted ceilings. The primary suite offers a relaxing bathroom, including a soaking tub and a separate shower. Enjoy the outdoors on the covered porch. Est. completion end of February. Builder is offering $2500 in buyer concessions.