4
3
2405
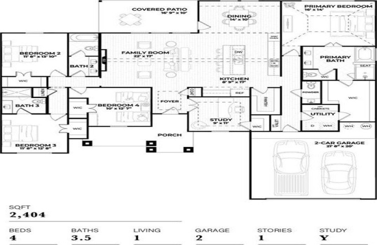
Property Description: MLS# 21147704 - Built by Dunhill Homes - Mar 2026 completion! ~ This exquisite single-family residence in Hartson Estates, set for completion in January 2026, features 4 spacious bedrooms and 4 bathrooms (3 full, 1 half) within 2,405 sq ft of thoughtfully designed living space. The traditional-style home boasts an inviting living area with a fireplace, a stylish eat-in kitchen with granite counters and an island, and a dedicated dining area. Enjoy the outdoors on the covered patio overlooking a private yard equipped with a sprinkler system. Additional highlights include a three-car garage, decorative lighting, and a blend of carpet, tile, and wood flooring. Located in the Waxahachie ISD, with Wedgeworth Elementary and Waxahachie High School nearby, this property is an ideal home. Don't miss the chance to make this stunning home yours!