5
4
3010
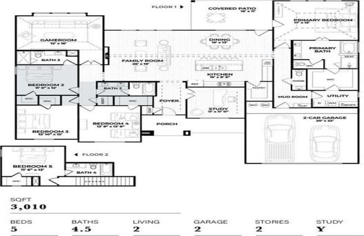
Property Description: MLS# 21147714 - Built by Dunhill Homes - Mar 2026 completion! ~ This exceptional 5-bedroom, 5-bathroom single-family residence in Hartson Estates is a masterpiece in progress, set to be completed by January 20, 2026. Spanning 3,010 square feet, this traditional-style home features a spacious layout with two living areas and a cozy fireplace in the living room. The heart of the home boasts an eat-in kitchen adorned with granite counters, a kitchen island, and decorative lighting. Enjoy the ease of a private yard and a covered patio, perfect for outdoor relaxation. Located within the highly-rated Waxahachie ISD, with Wedgeworth Elementary and Waxahachie High School nearby, this home offers both comfort and convenience in a friendly community setting. Don’t miss this opportunity for a new construction home tailored to your lifestyle.