4
3
2405
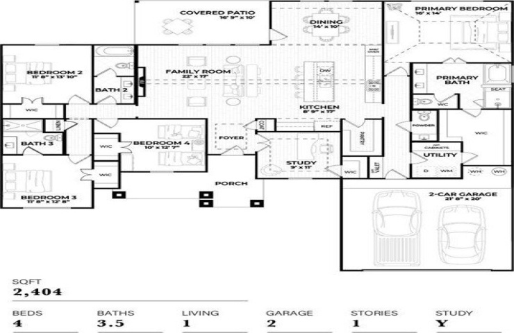
Property Description: MLS# 21147726 - Built by Dunhill Homes - Mar 2026 completion! ~ Discover a stunning new construction single-family residence in the desirable Calhoun Acres subdivision. This traditional 4-bedroom, 4-bath home boasts an impressive 2,405 square feet of thoughtfully designed living space, complete with a spacious open floorplan. Enjoy the elegance of decorative lighting, granite counters, and a kitchen island in the bright eat-in kitchen. The living area features an electric fireplace, perfect for cozy evenings. The master suite offers a walk-in closet and an ensuite bathroom, while three additional bedrooms provide ample space for guests. A covered patio invites outdoor relaxation in the private yard. Additional highlights include vaulted ceilings and a convenient two-car garage. Located within the Azle ISD, this home is set for completion by January 2026. Embrace modern living in this exceptional property!